減速機廠家認準淄博匯益減速機械,型號全
山東減速機專業廠家,供貨充足,品質放心


手機瀏覽
更方便
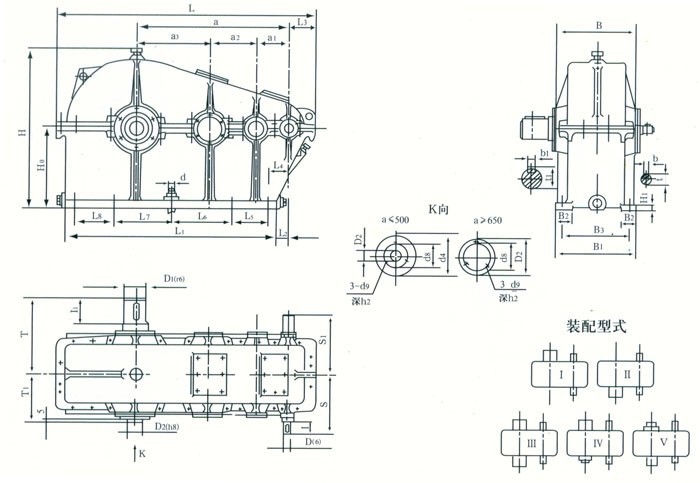
ZS系列圓柱齒輪減速機是按國家專業標準ZBJ19004生產的外嚙合漸開線斜齒圓柱齒輪減速器。ZS、ZSH、ZSSH系列圓柱齒輪減速機的齒輪采用高強度低碳合金鋼經滲碳淬火而成,齒面硬度達HRC58-62,齒輪均采用數控磨齒工藝,精度高,接觸性好;傳動率高;運轉平穩,噪音低;使用壽命長,承載能力高;易于拆檢,易于安裝。 ZS型減速器是三級漸開線圓柱齒輪減速器,ZSH是三級圓弧圓柱齒輪減速器,ZSSH是三級雙圓弧圓柱齒輪減速器。它們主要用于礦山、冶金、水泥、建筑、化工、輕工等各種機械設備的機械傳動。
影響減速機價格變動的因素:
市場上每一種產品價格的定位都是根據產品的性能、材料、工藝等因素來決定的,所以,要想了解減速機的價格變動的原因,應該從這幾方面去考慮:
1、如今,隨著市場鋼鐵價格的上漲,減速機的價格也在不斷攀升,二手減速機租賃,柴油減速機出租,其次,特別是今年冬季,市電供不應求,很多北方地區已經出現了限電現象,這使得它的價格一升再升,出租發電機組,減速機租賃等信息,再者,它是由很多零件組成的,流水生產線工藝復雜,因此整套的制造成本比較高。
2、在發電機組品牌相同,功率相同的情況下,要注意發電機的不同,選擇不同的發電機則整個減速機的性能就不同,它的性能是很重要的,因此用戶在選購它的時候一定要謹慎,可以根據自己的需求向該設備的銷售人員進行咨詢,減速機出租,減速機租賃,二手減速機出租,從而選擇相匹配的設備。
3、隨著市場鋼鐵和銅等原材料價格的上漲,減速機的價格也在不斷攀升,特別到了夏季,市電供不應求,全國各個地區已經出現了限電現象,這使得它的價格一升再升。
看了上面對減速機價格變動原因的分析,我們可以明白該設備價格的變動是一種正常的增長,山東的消費者們一定要全方面衡量設備的價格,合理選購!